Loading document...






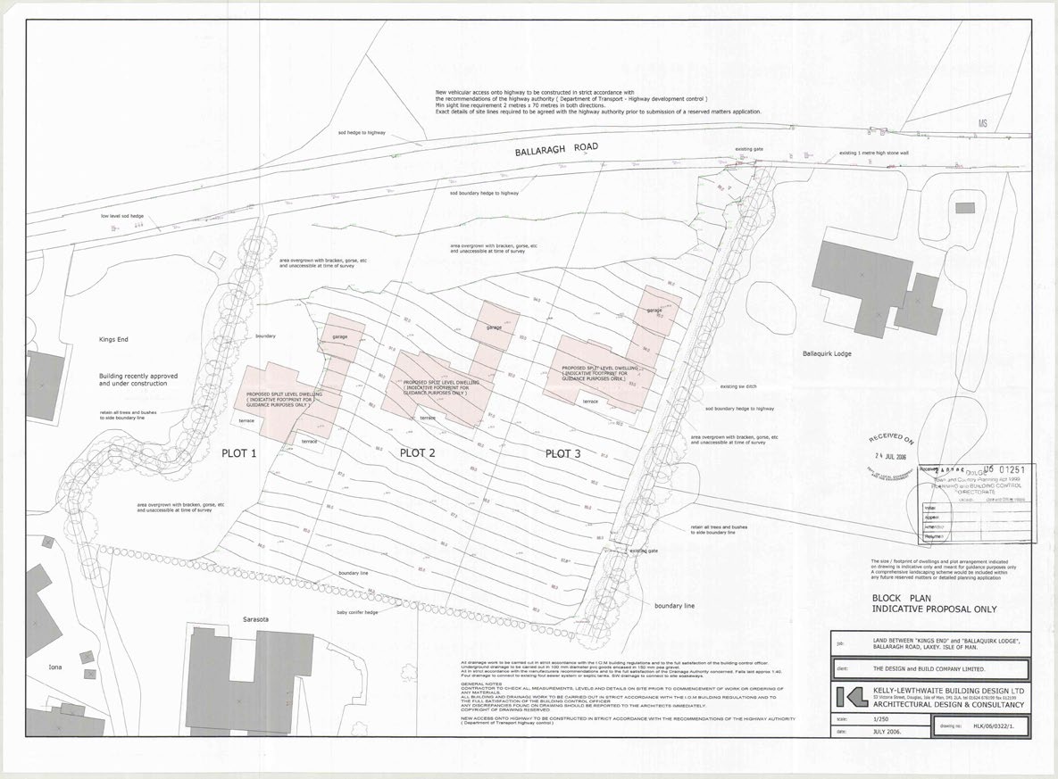
The site comprises of a parcel of land located between two existing residential properties off the B11 Ballaragh Road in Laxey. The site slopes north south from the road and is clear and open aside from a dilapidated builders unit, gorse and grass. The site has a fall from road level, at the site entrance, to the lower hedge line, of approximately 14.0m. Across the site, it is fairly even rising only around 0.5m across its width rising, slightly to the east. The vacant site sits between two existing dwellings. To the west, Hazelwood House and above to the east, Ballaquirk Lodge. South of the proposal sits Royan & Sarasota, which are unaffected by the proposals. The previously approved entrance gates have been constructed and aside from the fitment of gates, are complete.




BALLAQUIRK LODGE
SITE PLOT 3
PLOT 1 PLOT 2
B11 BALLARAGH ROAD Melview (Plot 1) Hazelwood House (Plot 2) Ballaquirk Lodge



Under the Laxey and Lonan area plan order 2005 the land is zoned for predominantly residential use and is designated specifically as area 7 which states that ‘this land will be considered suitable for the development of a maximum if 3 new dwellings. Access and drainage arrangements must be made in accordance with the requirements of the department of transport.’ (drainage and access are both in place and were executed as part of the construction of plots 1 & 2).
The site has been subject of a number of planning applications. The applications are listed below:
06/01251/A - Approval in principal for Plots 1, 2 & 3 Field 611664 Land between Kings Haven & Ballaquirk Lodge, Ballaragh Road, Laxey, Isle of Man. Approved 12th Sep 2006
06/01756/REM - Reserved matters application for plot 3 Approved 12th Dec 2006 10/01860/B - Erection of a dwelling (comprising amendments to 06/01756 REM) Approved 31st Jan 2011 16/00857/B - Erection of a detached dwelling dwelling with garage Plot 3 Field 614664 Approved 7th Nov 2016 20/00715/B - Erection of a detached dwelling with garage Plot 3 Field 614664 Approved 23rd Oct 2020


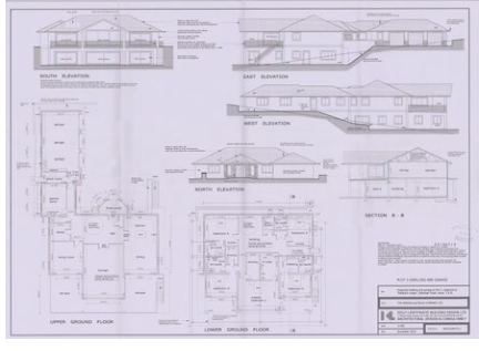
What is proposed offers a new dwelling of a more up to date design utilising modern building materials which are becoming more readily used in newer building design.
The proposal will be a highly energy efficient building utilising air source heating and solar, inside an air tight, highly insulated form which will far exceed the achievable u values of traditional masonry construction. Charging for electric vehicles will be fitted to the new garage.
The material finishes specified are; Natural larch timber cladding left to weather naturally. Natural blue/ dark grey roofing slates. Anthracite grey window frames. Dark grey render system. Grey metal fascia boards and roof profile copings. Frameless glass balcony handrail system.
The siting and design of the proposal has been carefully considered. At the outset, current approved drawings were investigated, in particular the approved floor levels which have been replicated on our proposal, matching both the lower and upper floor plans.
With this new design, the proposed ridge profile has been set to be the lowest level on the elevation closest to Hazelwood House rising slightly with the larger room spans away from Hazelwood House.
All windows to the Hazelwood House elevation have been considered to prevent overlooking, with the Lounge having a high level slot window, the guest bedroom having a narrow vertical slot window (which looks onto the high hedge between the two properties) with the en suite off this room being of obscured glass. The high level Lounge window brings in light but does not allow overlooking to occur.
FFL 95.975
down
93.33
down
92.98
GUEST BEDROOM
ENTRANCE UTILITY
walk over FFL 96.075 glass top pantry
down
En suite Dressing
The ideal position for a balance of cut and fill through the site situated the proposal approximately 4 meters further forward than its current position. It was felt by our client that we should situate further back and cut deeper into site to assist the owners of Hazelwood House. Following a visit to speak with the owners of Hazelwood House with this position shown, our client agreed to move the proposal further back again and in addition to this, further from their boundary fence also.
En suite
BEDROOM
HALL
walk over glass top En suite Dressing floor to ceiling
DECK
DECK
LOUNGE
DECK
The owners of Hazelwood House, who have had the benefit of a vacant building plot adjacent to them since their house was constructed, have been considered and consulted and the design and its position, has been adjusted to a substantial degree to assist, being pulled back in the site and pushed over towards the eastern boundary, at their request.
First Floor Plan
First Floor Plan
90.21
Ballaquirk Lodge sits higher than the proposal due to the rising land profile but is set well back from the proposals footprint and its east elevation and therefore is affected to a lesser extent by the proposal.
A large kitchen window which allows excellent outlook to the sea and gains the rising morning sun into the kitchen is situated on the south east elevation.
of Penketh Millar Ltd. It shall be read in conjunction with all other associated project information including
NORTH WEST ELEVATION 1:100 NORTH WEST ELEVATION SOUTH WEST ELEVATION (TO LAXEY BAY & VALLEY) SOUTH WEST ELEVATION (TO LAXEY BAY & VALLEY) 1:100 SOUTH EAST ELEVATION
.
1:100
.
SOUTH EAST ELEVATION 1:100
.
PLOT 3 BALLARAGH ROAD
of Penketh Millar Ltd. It shall be read in conjunction with all other associated project information including models, specifications, schedules and related
NORTH EAST ELEVATION (TO BALLARAGH ROAD) 1:100 Proposed walls to be clad as indicated
Vertically hung natural larch timber cladding left to weather naturally to a


The glazing to the south east elevation then receives the sun for most of the day with the principle outlook to Laxey bay and the Laxey valley.
The entrance elevation to the B11 Ballaragh road (north) appears as a single storey building and is not generally visible due to the existing entrance walls, pillars and gates with only a fleeting glimpse of the top of the roof profile by passing vehicles possible. This perception from the main public highway remains similar to the current situation.
In summary, the design of the proposal, together with its position in site and its surrounding buildings has been taken into consideration with the enjoyment of the occupiers of the two adjacent dwellings given due attention.
| 94<br><br> | |||
|---|---|---|---|
| <br><br>93.33 | |||
| --- | --- | ||
| 92<br><br>92.56<br><br>LINEN<br><br>Dressing<br><br>En suite<br><br>MASTER BEDROOM<br><br>up<br><br>LOWER DECK<br><br>LOWER LANDING<br><br>w<br><br>w<br><br>w<br><br>w w<br><br>FFL 92.80<br><br> |
The two existing properties at Plot 1 & 2 benefit from large balconies to allow enjoyment of the elevated position that the sites afford. The proposal offers a balcony also, albeit considerably smaller in area. The balcony areas have been reduced from 95 sq m on plots 1 & 2 to 49 sq meters as proposed. The open view and balcony length is approved at 6.8m and we propose only 1.4m
The current approval indicates a separation of 2.2m from the boundary at the proposals closest point. Our proposal falls 5.1m at the closest point to the boundary fence, meaning that we are 2.9m further away than the current approval.
Together with moving further away from Hazelwood House, we have greatly reduced the amount of glazed area to this elevation. The current approval shows 8 windows to the first floor, looking onto Hazelwood House equating to approximately 15 sq m of glass (excluding the door) compared to the proposed glazed area equating to only 4.5 sq m.
The dwelling proposed is approximately 5.0m shorter and 2.8m narrower than the current approval. Hazelwood House has 677 sq m of floor area stated on the planning form (excluding the recent approval for additional garage and gymnasium at 265 sq m). The new proposals floor area equates to 607 sq m 70 sq meters less.
1:100
100.
BALCONY BALCONY
Tel: 01624 813219 / 814178
[email protected] www.penkethmillar.co.uk
| 458 LTD |
|---|
Proposed dwelling at 'Plot 3', adjacent to Hazelwood House, Ballaragh Road, Laxey.
Lower Ground Floor & Site Plan


To summarise, the design of the proposal has been carefully considered with regard to both neighbours but in particular the occupants of Hazelwood House who have been consulted through the design development process and prior to any submissions.
Overlooking and the perception of overlooking has been considered by situating the proposal further away from Hazelwood House than the current planning approval:
• With the careful design of minimal glazed elements to the west elevation situated appropriately. • With considered design of the proposed balcony, allowing enjoyment of the outlook from the proposal but with a substantial reduction in area. The previously approved balcony position allows a greater area of direct overlooking to Hazelwood House. • With lower ridge levels adjacent to Hazelwood House. • With shorter wall mass along the Hazelwood House boundary. The previous approval shows approximately 35.5m of wall area facing the Hazelwood House boundary. We propose 18.5m of wall area to the same boundary, situated further away.
The darker coloured materials would sit more comfortably within the landscape than the more dominant white painted walls of surrounding dwellings.
The design is more contemporary utilising newer building materials and themes whilst using traditional external finishes such as slate, timber and render. These materials are in keeping with the area and would clad a highly insulated form, designed to exceed the current heat loss requirements.
Overall, we consider the proposals to meet current planning policies with regards to use, siting, design and materials.
Copyright in submitted documents remains with their authors. Request removal
View as Markdown